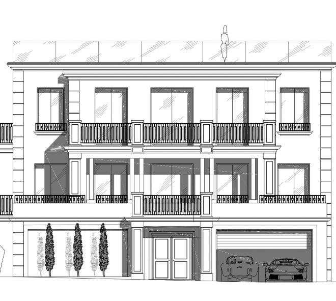
Projet MH/NICE
Un projet luxueux au Mont Boron, avec une magnifique villa art deco à rénover ! En plus de la gestion du permis ainsi que du chantier, le client souhaitait être accompagné pour l’agencement et la décoration intérieure. Un projet complet avec des prestations haut de gamme, qui va prendre vie fin 2025, l’équipe suit de près le projet et a hâte de voir le résultat !














HELEM
Votre projet en toute sérénité, notre agence à vos côtés !
CONTACT
VOUS SOUHAITEZ ÊTRE CONTACTÉ ?
contact@helem-architecte.fr
+33 7 67 24 14 01
© 2025. All rights reserved.
